
Habitation unifamiliale – Braine-le-Château
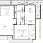
Dans un souci de discrétion et de respect du lieu, le projet s’organise en demi-niveau épousant ainsi le profil naturel du terrain tout en conférant à la construction une animation volumique.
Les façades latérales sont très peu ouvertes et discrètement percées de fenêtres afin de préserver l’intimité non seulement des occupants mais également des habitants voisins.
La façade nord, un peu plus ouverte présente une large baie au niveau de la cuisine. En retrait, celle-ci permet de se préserver des vues depuis le chemin tout en permettant des vues depuis l’intérieur vers le décor boisé situé en bordure de chemin. Il en est de même à l’étage. La chambre parents présente une longue baie horizontale dont l’allège haute empêche les vues indiscrètes depuis le chemin et offre par contre depuis la chambre un véritable tableau naturel formé par la couronne des arbres constituant le bois en bordure du chemin.
Enfin, la façade arrière orientée sud-ouest présente quant à elle une très large ouverture vitrée sur le jardin.
Des toitures horizontales viennent couvrir les volumes dans un souci de discrétion mais également d’économie volumique, la compacité étant la garante d’un coût raisonnable.

















